Để sở hữu một căn bếp đẹp tiện nghi, hiện đại thì điều đầu tiền cần thực hiện đó chính là lên bản vẽ thiết kế. Tuy nhiên, để thiết kế một bản vẻ tủ bếp đẹp ngoài kỹ năng đồ họa thì còn đòi hỏi kinh nghiệm trong cách sắp xếp các khoang tủ, vị trí các thiết bị, dụng cụ nấu nướng hợp lý và thuận tiện.
Bản vẽ tủ bếp là gì?
Bản vẽ thiết kế tủ bếp là bản
mô tả bố cục tủ bếp thể hiện chi tiết các cạnh, các mặt, đồ vật thông qua hình khối,
hình học không gian, bất cứ ai khi nhìn vào cũng có thể hình dung được vị trí cũng
như cách bố trí của các đồ vật nội thất trong căn nhà.
Bản vẽ tủ bếp đẹp gồm bản vẽ
2D và 3D.
Bản vẽ tủ bếp 3D
Bản vẽ tủ bếp 3D được thực
hiện bằng phần mềm vẽ thiết kế autocad 3D, có công dụng mô phỏng trực quan kiểu
dáng, cấu tạo tủ bếp, cách bố trí các thiết bị nhà bếp thông qua các không gian
3 chiều ngang – dọc – sâu cũng với các ý tưởng phối màu sắc ấn tượng, thu hút.
Bản vẽ 3D giúp bạn hình dung được tủ bếp sau khi hoàn thành trông thế nào.
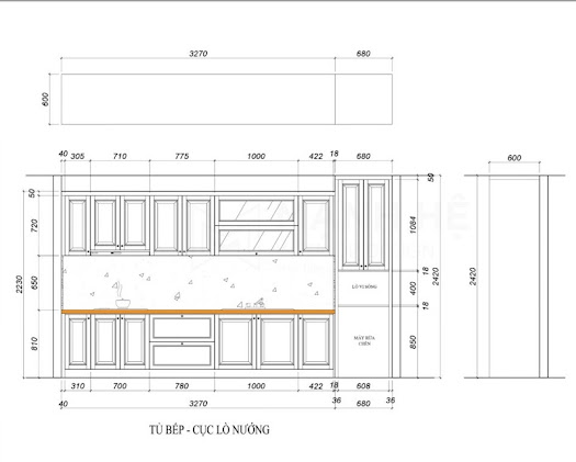
Bản vẻ tủ bếp 2D
Bản vẽ tủ bếp 2D là bản vẽ hình phẳng 2 chiều, được
thực hiện dựa trên bản vẽ 3D và thể hiện những con số kỹ thuật để mô phỏng kích
thước chính xác cho từng vị trí tủ bếp. Bản vẽ này được bộ phận xưởng dùng để
thực hiện sản xuất, cũng như mô phỏng lại bản vẽ theo lập trình trên máy móc sản
xuất để tạo ra những sản phẩm có kích thước chuẩn xác nhất.
Tại
sao cần có bản vẽ tủ bếp, bản vẽ thiết kế nội thất nhà bếp?
Với
cách thể hiện chi tiết của bản vẽ 3D, chân thật để bạn có thể hình dung được hình
ảnh chiếc tủ bếp tương lai của mình. Từ đó, bạn có thể đưa ra yêu cầu chỉnh sửa,
bổ sung để tủ bếp sao cho ưng ý nhất, phù hợp với nhu cầu của gia đình.
Bên cạnh đó từ bản vẽ tủ
bếp 3D, 2D mà có thể báo giá chi tiết để bạn dự trù được ngân sách đầu tư nhằm
hạn chế tối đa những phát sinh và cũng là cơ sở để bên công ty nội thất cam
kết thực hiện theo đúng thỏa thuận.
Ngoài ra các yếu tố khác như ánh sáng, đèn, màu
sơn tường, hệ thống điện nước đều được thể hiện trên bản vẽ tủ bếp. Thông qua
đó, bạn có thể xem tổng thể nhà bếp đã ổn chưa, phù hợp với gia đình hay chưa
để có những điều chỉnh hợp lý trước khi bắt tay vào thi công.
Những bản vẽ tủ bếp phổ biến
Bản vẽ tủ bếp chữ I
Là mẫu tủ bếp dạng thẳng nên bản vẽ tủ bếp chữ I
có cách sắp xếp khá đơn giản. Tủ bếp chữ I phù hợp với mọi không gian nhà
bếp, đặc biệt là những căn bếp diện tích nhỏ hẹp.
Bản vẽ tủ bếp chữ I cũng được tích hợp nhiều
thiết bị nhà bếp hiện đại, cũng như sử dụng các phụ kiện tủ bếp thông minh giúp
đảm bảo đầy đủ công năng sử dụng cho nhà bếp và tận dụng tối đa không gian.
Bản vẽ tủ bếp chữ L
Tủ bếp chữ L là
kiểu dáng được ưa chuộng nhất và sử dụng khá phổ biến. Với thiết kế 2 đường
giao nhau của 2 cạnh tủ bếp giúp cho việc phân chia khu vực và sắp xếp các dụng
cụ nấu nướng trở nên khoa học và gọn gàng hơn. Đặc biệt tủ bếp chữ L thích hợp
cho mọi diện tích từ lớn đến nhỏ.
Bản vẽ tủ bếp chữ L
Bản vẽ tủ bếp chữ U
Bản vẽ tủ bếp chữ U thường được thiết kế trong
những ngôi nhà diện tích tương đối rộng nên tủ bếp chữ U không quá thông dụng. Tuy
nhiên, bản vẽ tủ bếp kiểu chữ U với kết hợp bàn đảo bếp hay quầy bar bếp vẫn rất
được yêu thích bởi tính sang trọng, thẩm mỹ mà chúng mang đến
.jpg)
.jpg)
.jpg)
.png)
.jpg)
.jpg)
.jpg)
Đăng nhận xét